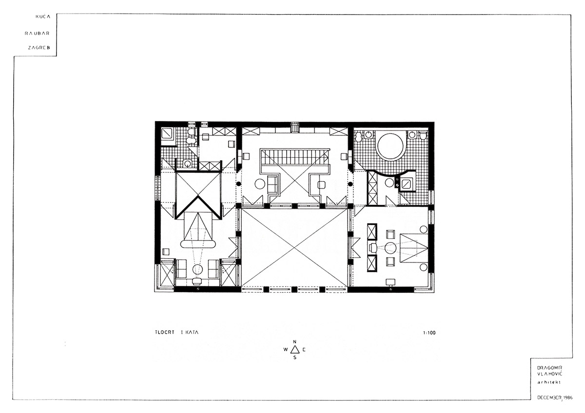
'Crna kuća' - Obiteljska kuća Raubar Kolovrat, Zagreb (Srebrnjak) 1991 - Velika nagrada 26. Zagrebačkog salona projekt 1986. izvedba: 1988.-1990.