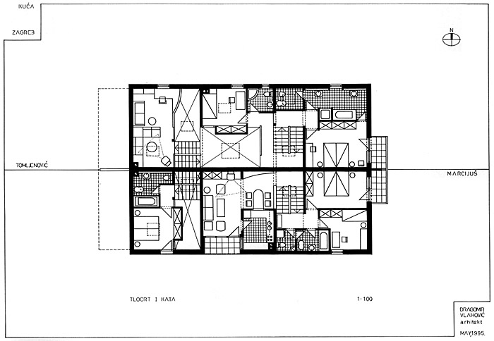
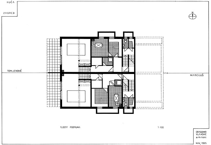
'Indigo plava kuća' - Tomljenović, Marcijuš (3 stana), Zagreb (Vidikovac)

projekt
1995.
izvedba:
1995.-1997.