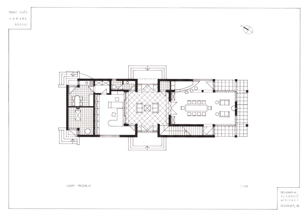
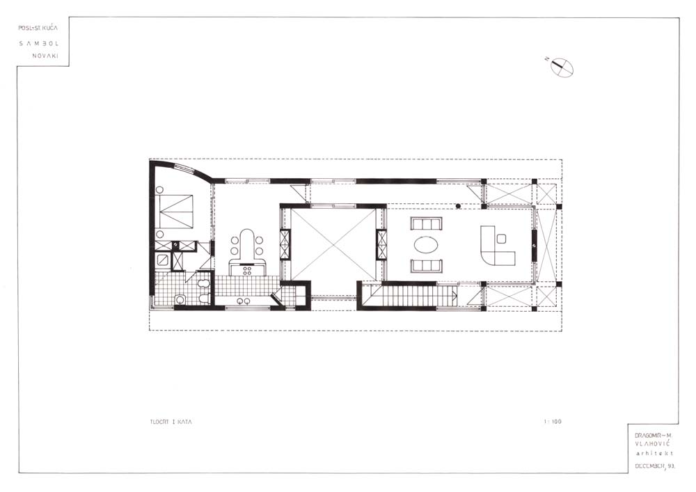
Poslovno stambena kuća - Crvena 'uspinjača' - Sambol, Samobor, Novaki

projekt
1993.